Quadrilocale in vendita

Pescantina, Via Prese
€ 365.000
4 locali 4 locali
138 Mq 138 Mq
2 bagni 2 bagni

Quadrilocale in vendita

Pescantina, Via Prese

Descrizione annuncio

Vivere in Centro. Vivere in Armonia. Vivere in Green.

Nel cuore del paese, a pochi passi da tutti i servizi e a breve distanza dalle principali vie di comunicazione, nasce IL PESCO. Un intervento residenziale esclusivo che unisce modernità, eleganza e sostenibilità.

Questo progetto prevede la realizzazione di un raffinato contesto condominiale distribuito su due piani fuori terra più un interrato. L'architettura, dallo stile moderno e lineare, si sposa con soluzioni che garantiscono un alto risparmio energetico e comfort acustico. Tra gli elementi distintivi, spiccano: l’installazione dell’impianto a pannelli fotovoltaici, un rivestimento a cappotto di pannelli in EPS grigio di 12 cm, la ventilazione meccanica controllata canalizzata, le tapparelle elettriche, la predisposizione dell’impianto d’allarme e la predisposizione dell’impianto domotico.

Il comfort abitativo è ulteriormente esaltato dal sistema di riscaldamento a pavimento alimentato da pompe di calore e dall'impiego di materiali di pregio che assicurano ambienti sempre accoglienti.

IL PESCO non è solo una casa, ma un vero e proprio stile di vita: il connubio perfetto tra eleganza, benessere e rispetto per l'ambiente. Scopri un nuovo modo di vivere, dove ogni dettaglio è studiato per offrirti il massimo del comfort e della sostenibilità.

La consegna è prevista per la fine dell’estate 2027.

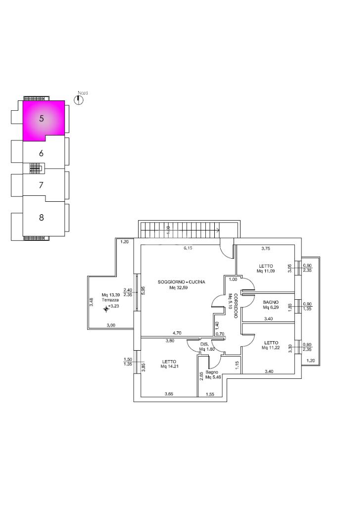
APPARTAMENTO N’5
L’appartamento sorge al primo piano e si compone di una zona giorno con angolo cottura e accesso diretto ad una terrazza abitabile, una camera matrimoniale, due camere doppie con balcone, due bagni con doccia e un box auto doppio.
Arricchito da un ingresso indipendente.

È bene ricordare che, benché sia stata posta la massima cura per garantire la precisione e la correttezza dei contenuti di questa presentazione al momento della pubblicazione, essa non ha alcun valore in sede contrattuale.

PER INFORMAZIONI E VISITE 340 45 24 443, siamo presenti alle pagine Instagram e Facebook Tecnorete Pescantina.

Mostra tutto

Nelle vicinanze

Trasporto pubblico Trasporto pubblico
Pescantina
Pescantina
1,4 Km
Arera sud
Arera sud
1,5 Km
S.Vito al Mantico - Via Piemonte
S.Vito al Mantico - Via Piemonte
1,6 Km
Ricariche auto elettriche Ricariche auto elettriche
EVBILITY - stazione di Bussolengo
2,2 Km
Eneldrive Municipio di Bussolengo
2,2 Km
Scuole Scuole
Asilo Nido
250 m
Scuola Elementare
760 m
Scuola Media
770 m
Scuola Elementare Citella
1,7 Km
Scuola Elementare comunale
2,4 Km
Farmacia Farmacia
Farmacia
520 m
Farmacia Balconi
1,3 Km
Farmacia Titton Paola
2,0 Km
Farmacia Centrale
2,2 Km
Farmacia Benincasa
2,3 Km
Ospedali Ospedali
Ospedale Orlandi
2,0 Km
Supermercati Supermercati
Sigma
130 m
Eurospin
1,9 Km
Martinelli
1,9 Km
LIDL
2,0 Km
Conad
2,2 Km
Negozi Negozi
Panificio Alessia
280 m
L'Albero Alimenti Bio
890 m
Negozi
1,3 Km
Le 2 Spighe
2,0 Km
Il Quadrante
2,1 Km
Bar Bar
Mixup
140 m
Movie
160 m
Bar
700 m
Chiaroscuro Cafè
840 m
Roxy
850 m
Ristoranti Ristoranti
Rosso Peperone
120 m
Zorba
300 m
Osteria "da Felisse"
550 m
Piccola locanda
580 m
La Tonda
1,2 Km
Mostra tutto

Caratteristiche

Rif.:
61190039
Piano:
1 di 2 (Piano basso)
Box:
1
Balconi:
1
Terrazzi:
1
Camere da letto:
3
Mostra tutto
Prezzo Prezzo
€ 365.000
Rata mutuo Rata mutuo
€ 1.734 / mese
Spese annue Spese annue
€ 0
Proponi il tuo prezzoProponi il tuo prezzo
Immobile valutato con T·Valuta

Classe Energetica

A3
A3
A3
A3
A3
A3
A3
A3
A3
EP invernale del fabbricato:
EP estiva del fabbricato:
Anno di costruzione:
2027
Riscaldamento:
Autonomo
Tipo impianto:
A pavimento
Tipo alimentazione:
Altro

Ti interessa visionare l'immobile?

Fissa un appuntamento  Fissa un appuntamento

Richiedi informazioni

Clicca su Leggi per aprire l'informativa
* Questi campi sono obbligatori

Calcola il tuo mutuo

Semplice e senza impegno
Anticipo

( % )
Mutuo

( % )

pochi semplici passi

inserisci i tuoi dati
Questionario completato
Grazie per aver richiesto un appuntamento senza impegno con un nostro Consulente del Credito e Assicurativo.

Hai inserito correttamente tutti i dati necessari e a breve riceverai una e-mail con un link da convalidare per inviare i tuoi dati.
Affiliato
Pescantina Tre Srl
Via Are, 179 37026 Pescantina (VR)

Il nostro staff


  • Vittorio Ly
    Affiliato

  • Cinzia Gamberoni
    Coordinatrice

  • Fabio Ridolfi
    Collaboratore

  • Sabrina Russo
    Collaboratrice

  • Nadia Zanini
    Collaboratrice

  • Arianna Zanetti
    Affiliata
Via Are, 179 37026 Pescantina (VR)
Zona: Pescantina-Settimo-Balconi-Arcè-S.Lucia
Mostra su mappa
Affiliato
Pescantina Tre Srl
Via Are, 179 37026 Pescantina (VR)

2026 Tecnocasa Franchising S.p.A. - P. IVA 08365160152 - Via Monte Bianco 60/A 20089 Rozzano (MI). Ogni agenzia ha un proprio titolare ed è autonoma. Privacy policy | Policy utilizzo | Cookie policy